GARNELENHAUS - ONLINESHOP
GLASGARTEN - Environment Aquarium Soil
AQUA DESIGN AMANO (ADA)

Planung Zuchtblock....und viele Fragen

    Diese Seite verwendet Cookies. Durch die Nutzung unserer Seite erklären Sie sich damit einverstanden, dass wir Cookies setzen. Weitere Informationen

    • Planung Zuchtblock....und viele Fragen

      Moin zusammen,

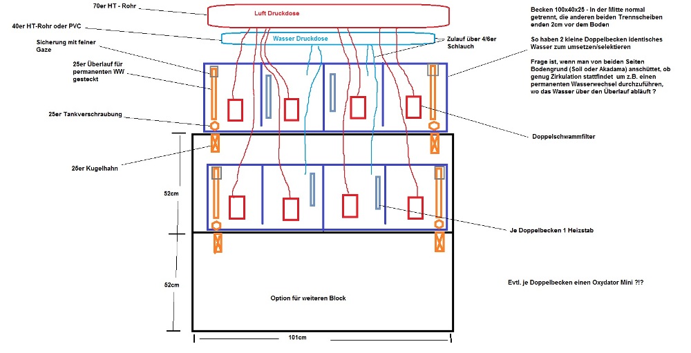
      wir planen gerade einen kleinen Zuchtblock für die kleine Zucht und Selektion unserer Garnelen (ja ja....das Fieber) :D

      Nun möchten wir es, wenn wir es machen, auch ordentlich machen. Ein Alu-Steck Regal (25er) konnten wir schon erhaschen.

      Als erstes wäre da die Frage zu den Becken. Wir stellen uns vor, dass wir ein Becken 100 x 40 x 25 in 4 Becken unterteilen und 2 davon auch untereinander verbunden sind (leichteres Umsetzen der Tiere). Die Frage ist, Zirkuliert mit unserer Idee (Trennwände enden 2cm vorm Boden) ausreichend Wasser und klappt es mit einem Überlauf wenn wir das Frischwasser z.B. mit der Tröpfchenmethode permanent zulaufen lassen. Der Überlauf soll ein 25er PVC Rohr sein, was nur gesteckt ist um auch größere WW einmal die Woche zu machen.

      Was meint ihr ?

      Bei der Beleuchtung haben wir an einfache LED Baustrahler mit 10Watt (warmweis) gedacht. In den Becken werden nur Moose gehalten (max. mal ne kleine Anubias auf einer Wurzel).

      Zusätzlich zur Raumheizung, wollen wir in jedem Doppelbecken (wenn diese denn sinnvoll sind) einen Heizer installieren.

      Ich hoffe meine angehängte Skizze ist verständlich ?!?

      Was habt ihr für Verbesserungsvorschläge bzw. Ideen ? Danke vorab.

      Frank
      Bilder
      • Zuchtblock Garnelen klein.jpg

        111,09 kB, 1.000×511, 1.090 mal angesehen
    • Re: Planung Zuchtblock....und viele Fragen

      Hei..ihr seid doch "Anfänger" oder hab ich das in den falschen Hals bekommen?
      Dafür is das Ding ganzschön kompliziert :o
      MIr tuns auch ein Baumarktregal mit Standart 45/25 und 12 Literbecken..dazu paar Sonderanfertigungen 20x20x50
      Selektieren is auch kein größeres Problem..innerhalb einer Anlage die Regelmäßig WW bekommt, kann man die Garnelen einfach rüber und nüber setzen...wenn man Schiss hat, macht man das halt nach dem turnusmäßigen Wasserwechsel..da sind die WW am ähnlichsten..
      Das mit den Wasserwechseln über Bodenablauf oder so is natürlich cool...
      Und warum so viele Heizer?
      Die sind ein potenzielles Risiko :o
      Kannst Du nicht den Raum auf mind. 20° heizen?
      Wenn das nicht geht ist es ein ganzschön teurer Spaß den Raum über Aquarienheizer aufzuheizen :saint:
      Deswegen gibts bei mir im Winter eine nicht ganz ungewollte Vermehrungpause.
      Tut den Tieren gut und im Frühling explodieren die Becken schier 8o
      Bis jetzt ist es aber noch warm genug..ich schätzemal die Winterpause wird dieses Jahr höchstens 2 Monate sein.
      Diese Woche gabs noch Nachwuchs bei den Pintos und Wildbees :happy: ...Neos sowieso :saint: Deren Becken sind etwas wärmer aufgrund anderer Beleuchtung.
      Tja..T8 spart einem die Heizstäbe :evil:
      VG Monika
      Leben ist in der kleinsten Pfütze!
    • Re: Planung Zuchtblock....und viele Fragen

      Hi,

      durch die Tröpfelei bzw. permanenten Wasserdurchlauf hast Du sowieso in jedem Becken die gleichen Werte. Wo kommt das Wasser für den Permanentdurchlauf eigentlich her?

      Durch den Boden ist genug Wasserdurchlauf vorhanden, so das in beiden Becken der gleiche Wasserstand besteht. Einen Boden der so verdichtet ist, das da kein Wasser mehr durchgeht kann ich mir im Aq. nicht vorstellen, zur absoluten Sicherheit würde ich die Trennscheiben einen halben cm unter der Beckenhöhe enden lassen.

      Sofern die Anlage in einem Wohnraum steht, brauchst Du keine Heizung. Allerdings würde ich in jedem Becken noch einen kleinen Filter für die Wasserbewegung haben wollen.

      10 Watt LED Baumarktstrahler sind ganz schön hell, soll da über jeden 25 cm Abschnitt einer?
      mfg Hans
    • Re: Planung Zuchtblock....und viele Fragen

      Moin,

      @Monika

      Ja, Anfänger was Garnelen betrifft. Ich habe aber jahrelang z.B. Diskus (auch in diesem extra Raum) gezüchtet und in Summe seit knapp 40 Jahren Aquarien (mit Unterbrechungen).

      Klar geht das auch einfach, was Regal, Aquarien etc. betrifft. Allerdings habe ich den Hang, es gleich ordentlich und bequem zu machen. Bequem im Sinne, es bleibt mehr Zeit für die Tiere (beobachten, selektieren usw.) und die Anlage kann auch mal ein paar Tage allein sein.

      Die Heizer sollen eigentlich eher als Sicherheit dienen, falls der Raum mal Kühler ist. Der Raum selbst hat aber Fußbodenheizung und lässt sich demnach auch ausreichend erwärmen.

      @Hans

      Neben dem gleichen Wasser, spare ich mir so auch 50% an Tankverschraubungen, Kugelhähne etc. Das Wasser kommt aus der Leitung, ich kann es im Vorfeld aber auch in der Regentonne abstehen lassen. Das würde ich mal testen. Hast Du dabei Bedenken ?

      Wasserbewegung werde ich jetzt über Doppelschwammfilter (die zum Einsatz kommen sollen) sicherstellen.

      Ja....10 Watt ist schon ne Menge. Habe jetzt 10Watt Röhren entdeckt, da sollten 2 für jedes Regal reichen. Evtl. wäre hier eine Dimmung sinnvoll ?!?

      Frank
    • Re: Planung Zuchtblock....und viele Fragen

      Hi,

      diese LED Röhren gibt es in allen gängigen Längen, sie passen in normale Röhrenfassungen, man muß nur den Starter gegen den Dummystarter (ist bei LED Röhren dabei) austauschen. Klick mich

      Um Bees, egal welcher Farbe/Rasse im Leitungswasser Durchfluss zu halten brauchst Du schon verdammt gutes LW, sowas kommt wohl in den seltensten Fällen aus dem Hahn. Falls Du die Diskus in Deinem LW gezüchtet hast, könnte es gehen.
      mfg Hans
    • Re: Planung Zuchtblock....und viele Fragen

      Hei, ok..dann geht das doch ehr in Richtung alter Hase :evil:
      Mir ging es eigentlich mehr um die Ausdauer, wie lange das einer macht...
      Und ob da der Aufwand dann in der Relation steht ?(
      Wenn das so ist, werde ich Dich um das Ding beneiden :S

      Bei Bees und noch weniger bei Neos, mußt Du Dir keine Sorgen wegen der Temperatur machen.
      Kälter als 15° wird es in Deinem Keller doch sicher nicht werden oder?
      Bienen leben in Habitaten, wo Jahreszeitliche Schwankungen in dem Rahmen normal sind und Neos können sogar im ausreichendtiefen Gartenteich bei 4° überwintern :saint:
      Es werden mehr Garnelen aufgekocht, als das sie an zu kalter Temperatur zugrunde gehen..die gucken dann halt etwas langsamer, aber schaden tut es ihnen nicht...Die Bakteriendichte is ja in kühlen Becken auch günstiger und der Sauerstoffgehalt höher.
      Ich würd lieber den ganzen Raum auf etwa 20° bringen, den Rest bis auf 22° erledigt normal die Abwärme der Technik.
      Ein Minimaxthermometer das evt. noch einen Hygrometer dabei hat, ist eine super Anschaffung :saint: um das ganze im Jahresverlauf zu kontrollieren...

      VG Monika
      Leben ist in der kleinsten Pfütze!
    • Re: Planung Zuchtblock....und viele Fragen

      Moin,

      die Diskus habe ich auf normalem Leitungswasser gehalten und teilweise auch groß gemacht, aber die Zucht lief über Osmose bzw. Salzsäure.

      Im Moment habe ich im Leitungswasser eine kH von 7.....gH von 12 und der pH schwankt zwischen 7 und 7,4....meißt 7,2.

      Die ersten Arten (weil vorhanden) werden blaue Tiger, Bloody Mary und grüne Garnis sein. Also alles eher Arten die mit diesem Wasser zurecht kommen sollten (hoffe ich nach vielem Lesen).

      Wenn es mal in andere Richtungen geht, würde ich Osmose verwenden.

      Hmmm...auch eine Möglichkeit die LED `s. Evtl. wären ja auch einzelne Aufstecklampen etwas...wie diese: garnelenhaus.de/technik/beleuc…nnerle-nano-light-9w.html

      oder diese:
      garnelenhaus.de/technik/beleuc…dy-smart-sunny-weiss.html

      Die Ausdauer weis man doch nie ?!? Da handhabe ich es aber auch so, wenn ich Lust dazu habe, mache ich es.....und wenn ich nach z.B. 1 Jahr keine Lust mehr habe, dann ist das so, aber ich habe die Zeit genossen. So lange es dabei den Tieren gut geht, für mich vollkommen ok. Man(n) lebt nur einmal. ;)

      Frank
    • Re: Planung Zuchtblock....und viele Fragen

      Hallo Frank,

      ich würde die Becken ganz anders realisieren. Das ist alles viel zu kompliziert und man muss berücksichtigen das keine Jungtiere die Seiten wechseln können, die Überläufe nicht verstopfen und das eine wirkliche Wasserzirkulation stattfindet etc......

      Am Einfachsten und auch techniksparsam realisiere ich sowas aus einem Block. Das heisst 1 grosses Becken in das eine 2. Glasrückwand eingebaut wird mit etwas Abstand zur wirklichen Aquarien-Rückscheibe. In diese 2. Rückwand werden herausnehmbare Mattenfilter eingebaut und somit dient der entstandene Raum dann als Verbindung für die Becken. Je nach Breite der einzelnen Abteile könnte die Matte sogar die gesamte Rückwand ausfüllen.

      In diesen Raum kann man dann einen Ablauf/Überlauf unterbringen, Heizung sowie 1 elektrische Pumpe welche dann das Wasser in die verschiedenen Abteile verteilt. Natürlich könnte man auch jeweils 1 Luftheber in jede Matte stecken.
      Grüsse aus Freyburg
      Steffen
    • Re: Planung Zuchtblock....und viele Fragen

      Moin Steffen,

      Danke für Deine Idee, die ich auch für eine sehr gute halte. Zumindest dann, wenn man gleiches Wasser in den jeweiligen Becken realisieren will. Top.

      Ich habe mich jetzt aber entschieden, jedes Becken 25x40x25 einzeln aufzustellen, einfach aus dem Grund, das man bei Krankheiten, Reinigungsarbeiten etc besser agieren kann. Die Wasserunterschiede werden sicherlich kaum vorhanden sein bei gleicher Einrichtung (Bodengrund, etc), so kann ich auch mal nebeneinander liegende Becken, bei kpl. verschiedenen Werten fahren.

      Die Kosten der Verrohrung etc. Sind zwar etwas hõher, aber das nehme ich gerne in Kauf.

      Frank
    • Benutzer online 2

      2 Besucher